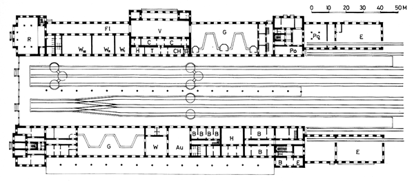
Matthias Schönerer und
seine Mitarbeiter erbauten in den Jahren 1841-1846 den
Gloggnitzer und den Raaber Bahnhof. Dem Geist des
Klassizismus verpflichtet, wurden diese Bahnhöfe
symmetrisch angeordnet. Verbunden waren sie durch die
gemeinsam genützten Depots, Remisen, Werkstätten
und durch ein Restaurant, das dem Belvedere gegenüberliegend,
einen herrlichen Blick über Wien bot. Die Übernahme
der Staatseisenbahngesellschaft vom Bankhaus Sina an
Credit Mobilier und der Südbahn an Rothschild am
Ende der Fünfziger Jahre führte die
architektonische Abgestimmtheit der beiden Bahnhöfe
zu Ende.
1873 wurde ein neuer
„Süd-Bahnhof“ an der Stelle des
Gloggnitzer Bahnhofs nach den Plänen von Wilhelm
von Flattich – rechtzeitig zur Wiener
Weltausstellung – vollendet. Damals tauchten die
Ideen des Zentralbahnhofs auf, die auf die zentrale
Bedeutung innerhalb der Monarchie, nicht jedoch auf die
Funktion zurückzuführen waren. Der Ostbahnhof
entstand nach den Plänen von A. Schumann an der
Stelle des früheren Raaber Bahnhofs in den Jahren
1867–70. 1910 wurde der Bahnhof „Wien-Centralbahnhof“
in „Wien Staatsbahnhof“ und 1914 in „Wien
Ostbahnhof“ umbenannt. Im Zweiten Weltkrieg wurden
diese Bahnhöfe (Süd- und Ostbahnhof)
weitgehend zerstört.
Der dritte Wiener Südbahnhof entstand 1955–61 nach den Plänen von H. Hrdlicka, als Endpunkt der Ost und der Südbahn. Die Funktionalität des Betrieblichen möchte perfekt sein, jedoch die repräsentative Eleganz der Gründerzeit ist dabei verloren gegangen.
Die nächste Phase der Entwicklung des Südbahnhofs betrifft die Errichtung des Bahnhofs Wien in den kommenden Jahren. Dieser sollte die Relationen Berlin–Prag–Wien–Italien (Nord–Süd), Budapest–Wien–Italien (Ost–Süd) und Deutschland/Schweiz–Wien–Budapest (West–Ost) betreuen. Als Siegerprojekt wurde 1995 nach einem Expertenverfahren das Projekt Theo Hotz gekürt, das in drei Bauetappen bis zum Jahr 2015 abgeschlossen werden soll.















